Artist Residency
Construction Documents Instructors: Kerenza Harris & Pavel GetovTeam: Melanie Alcorn, Amanda Dellevigne, and Abagael Warnars
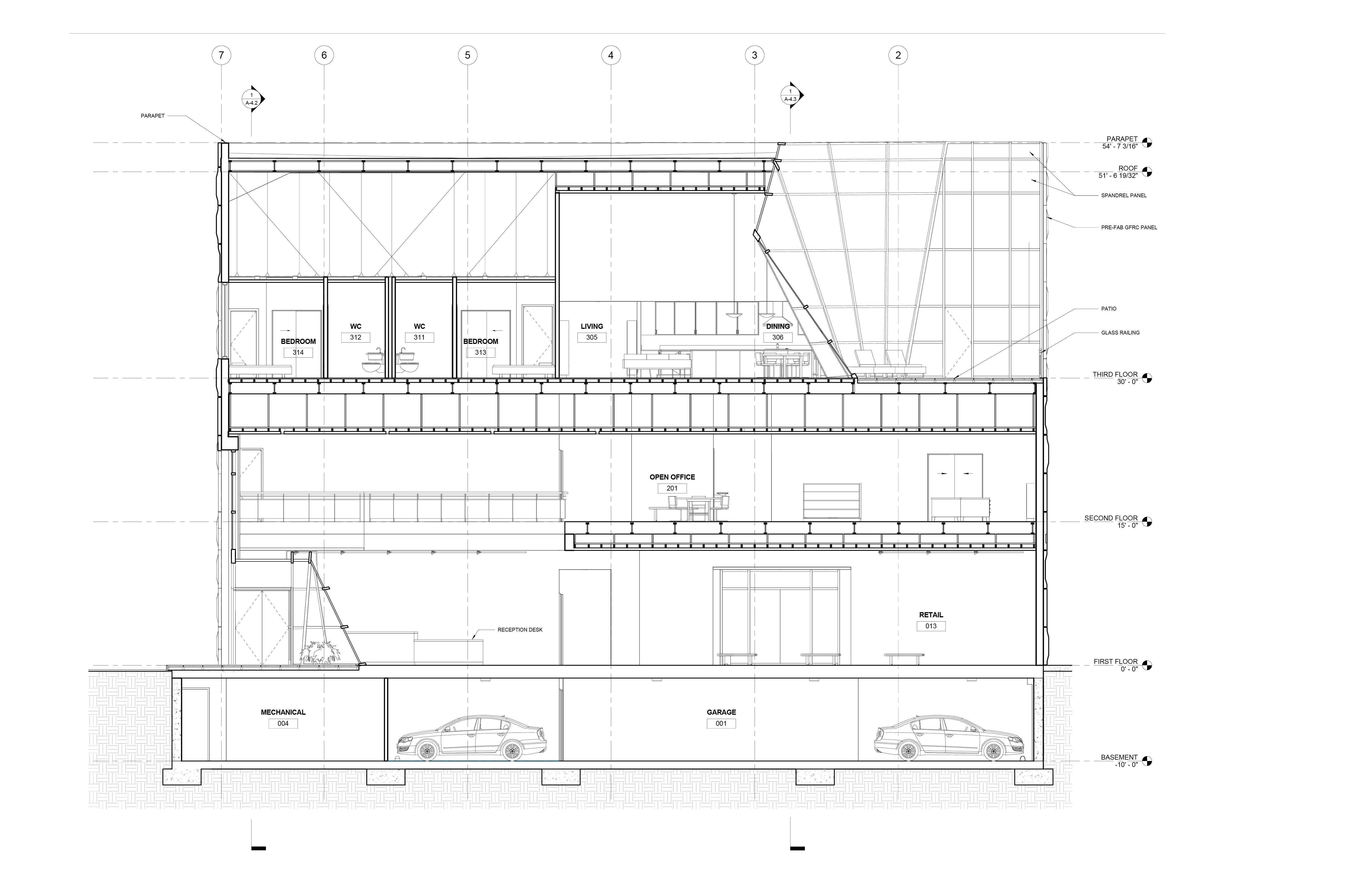
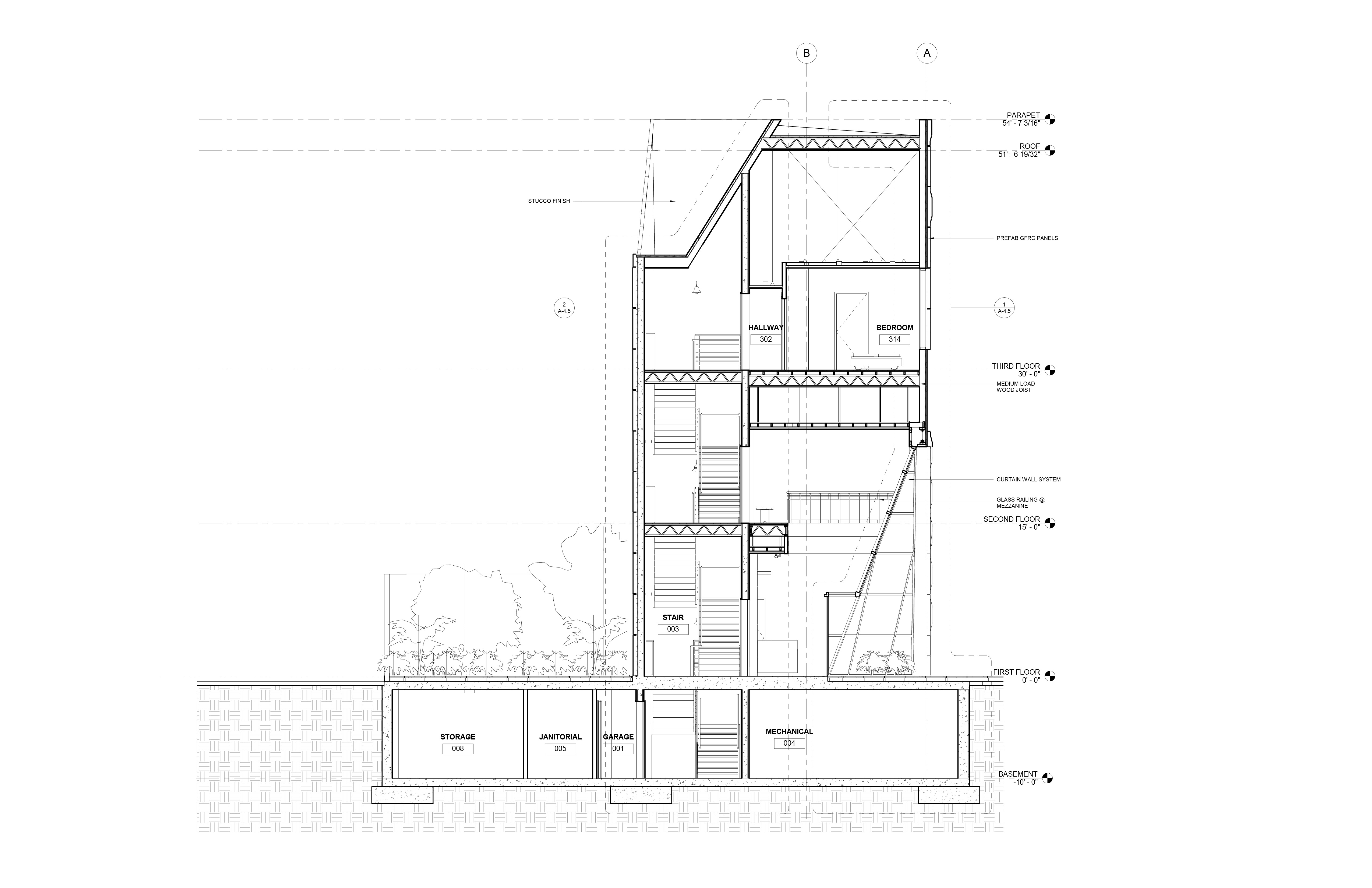
Each team produced a three story, mixed-use project for a corner lot in Los Angeles, CA. The project was to include residential, commercial and retail levels. Our team responded to the brief by creating an artist residency program where three artists would live, work and exhibit. The first floor is a public gallery space with visual access to the lofted studio areas on the second floor. The third floor contains the privately accessed residences. Large chunks were removed from the overall massing to create space for the public entry into the gallery and a private terrace for the residence.










